热门搜索: 万科 杭州 保利 昆山 虹桥汇
您当前位置: 首页 > 楼盘 > 上海 > 青浦区
景瑞城中公园

报价:

40000

元/㎡

【特价房源】限时,仅1套!

已有55人报名

面积:77-138平米

装修情况:精装交付

交房时间:现房

楼盘地址:盈港路453号

开发商:景瑞地产

电话图标 1358-5654-666

问底价?不如一个电话轻松搞定!

图标 降价通知

图标预约看房

楼盘信息

项目介绍

一、景瑞城中公园项目紧邻盈港路城中北路路口---青浦老城核心区。青浦是西上海连接江浙两省的重要出入口,故有“上海西大门”之称,目前上海西部是国家十三五规划的区域,也是未来城市向西发展的主要方向,随着上海两翼齐飞的规划,青浦作为大虹桥的核心辐射区域,近几年的发展突飞猛进,上海将形成东有“大浦东”,西有“大虹桥”的“双引擎”格局。
 
 
 
二、交通: 17号线,东起虹桥火车站,西至朱家角东方绿洲,中间13个站点,预计17年年初全线通车。项目位于青浦站,项目自驾出发的话,至虹桥枢纽,而至人民广场,徐家汇,南京西路等城市核心地区,交通便利。
 
 
三、景瑞地产(集团)有限公司始创于1993年9月。现已发展成为一家业务涵盖房地产开发、建筑装饰装修、商业运营及物业管理的全国化品牌地产开发集团,并多次获得“中国房地产开发企业百强”50强。2013年10月,景瑞在香港主板上市,截至目前,景瑞已在15城联袂开发48盘,为近三万个家庭打造了优居家园!
 
 
 
四、景瑞城中公园位于青浦老城的核心位置,由大型住宅、办公和商铺组成,总占地面积20万方,自带5万方成熟商业配套,及一幢5A级办公写字楼,住宅总建筑面积10万方,占地面积4万方,含2300平的自带商业配套,容积率为2.52,项目由12栋高层住宅组成,总体规划采取科学合理的人性化设计,以建筑参数,园林组团,打造宜居、人性化的住宅样板。 小区采用新古典建筑风格,将怀古的浪漫情怀与现代人对生活的需求相结合,兼容华贵典雅与时尚现代。
 
 
五、住宅总高20层,层高2.8米,2梯4户,2梯5户。可售面积:87352㎡,绿化率≥35%,户数853户(其中住宅805户,商铺48户)地下停车位:1150 个
 
 
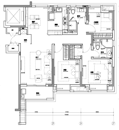
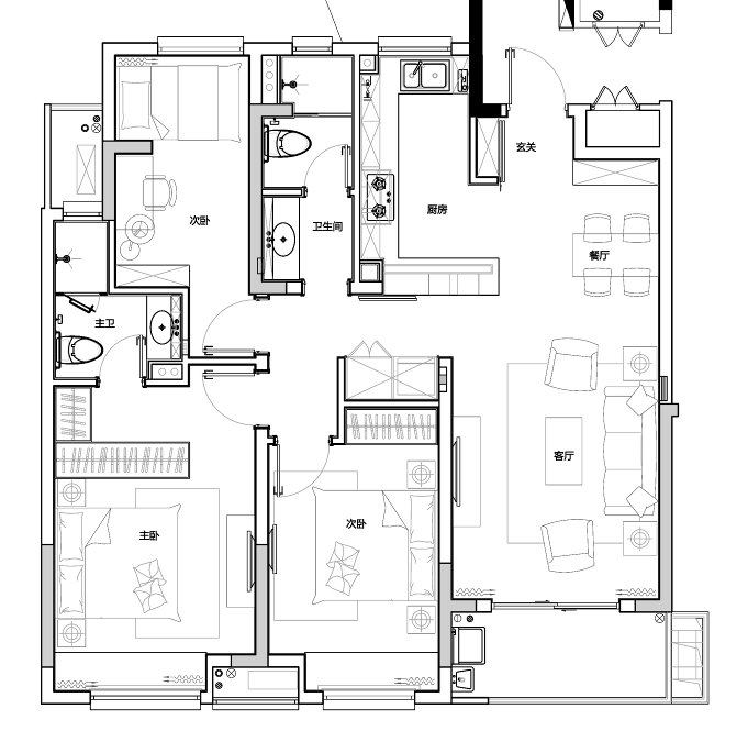
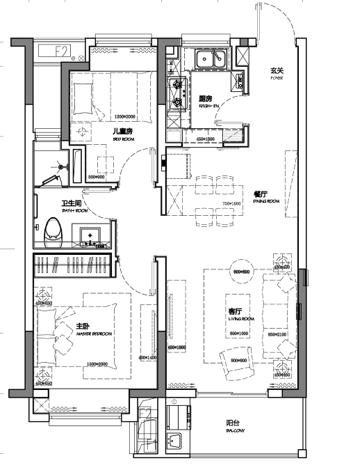
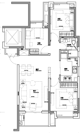
75平小户型两房,同时可变为小三房
93平三房两厅一卫,三开间朝南、阳光充足;
 
105㎡三房两厅两卫.三开间面南设计,保证全天充分采光
118㎡三房两厅两卫,三开间朝南; 三间主卧都带飘窗
 
138平四房两厅两位,三开间朝南;三间主卧及书房都带飘窗。户型正气。
 
单价:39000-42000元/平米,总价370万左右,首套3.5成,二套首付7成
 
 
 


数据参数

  • 所属区域
    青浦区
    售楼电话
    1358-5654-666
    停  车  位
  • 楼盘名称
    景瑞城中公园
    开盘时间
    物  业  费
  • 楼盘特色
    交房时间
    现房
    物业公司
  • 楼盘类型
    住宅
    装修情况
    精装交付
    建筑面积
    10万方
  • 产权年限
    容  积  率
    2.52
    占地面积
    4万方
  • 楼盘报价
    40000元/平方米
    绿  化  率
    35%
    开  发  商
    景瑞地产
  • 户型面积
    77-138平米
    总  栋  数
    预售证号
  • 付款方式
    总  户  数
    853户
    楼盘地址
    盈港路453号

周边配套

  • 学校
  • 购物
  • 医院
  • 生活
  • 娱乐
  • 餐饮
户型图
相册
地图
你可能感兴趣的楼盘

您要预约看房的楼盘是
景瑞城中公园

  • 您要预约降价通知的楼盘是
    景瑞城中公园

  • 您要预约看房的楼盘是
    景瑞城中公园

  • 您要降价通知的楼盘是
    景瑞城中公园