热门搜索: 万科 杭州 保利 昆山 虹桥汇
您当前位置: 首页 > 楼盘 > 上海 > 黄浦区
士林润园

报价:

250000

元/㎡

风貌别墅 成熟商圈 品牌房企

【特价房源】限时,仅1套!

已有490人报名

面积:210-500平米

装修情况:毛坯交付

交房时间:2027年4月前

楼盘地址:黄浦河南南路蓬莱路

开发商:上海士林置业有限公司

预售证:黄浦房管(2025)预字0000005号

电话图标 1358-5654-666

问底价?不如一个电话轻松搞定!

图标 降价通知

图标预约看房

楼盘信息

项目介绍

一、区域:
华润士林润园坐落上海城市文明之源,海派文化发源地的老城厢主轴中心,环抱新天地、淮海中路、陆家嘴等繁华商圈,北邻人民广场、外滩,南接豪宅区,尽享繁华商圈与文艺街区。上海未来城市封面都将是士林华苑的生活场域,领踞黄浦CAZ中心地段,加上豫园这百年来传承的文化底蕴。这样的地段人文底蕴和繁华配套生态资源相拥,无疑是上海城心。 


 
二、交通:
项目毗邻地铁8号线老西门站、10/14号线豫园站及9号线小南门站轻松可达,步行距离约850-900米,地铁网络覆盖上海各区,出行无忧。
 

 
三、项目:
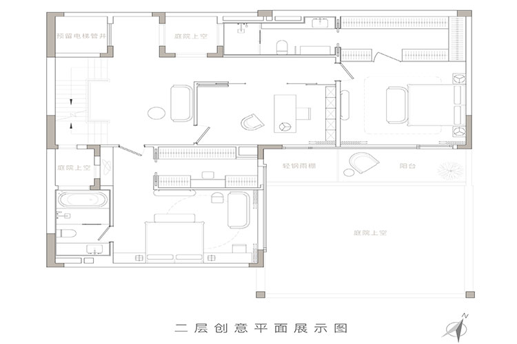
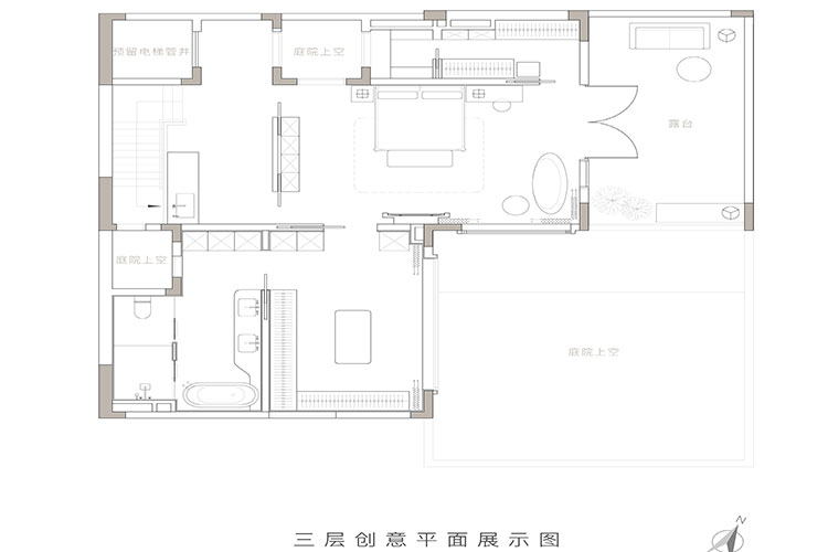
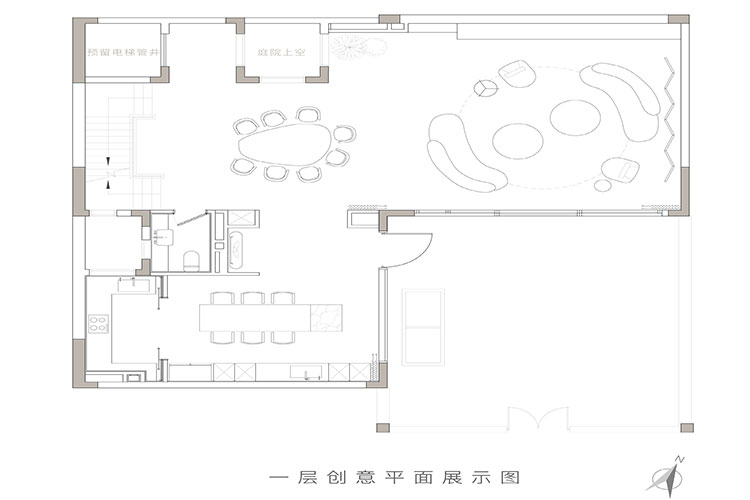
华润士林润园为老西门街道旧城改造项目,由南房和华润联合开发。建筑设计遵循风貌保护要求,溯源石库门建筑海派风骨,有天有地的城市中心风貌院落,一栋一天地的世家门庭,海派低密合院恒藏,项目配有会所,面积为210-500平米3F合院别墅;匠呈103席城市中心纯粹的风貌合院。
 
 
 
四、出售:
海派风貌合院别墅
建筑面积210-500平米,地上3层,地下2层,底层庭院、2-3层露台,赠送大地下室和停车位,房间尺寸大且豪华,居住舒适。报价23-32万/平米,总价6000万-1.7亿左右


 

数据参数

  • 所属区域
    黄浦区
    售楼电话
    1358-5654-666
    停  车  位
    560个
  • 楼盘名称
    士林润园
    开盘时间
    2025年2月
    物  业  费
    地上20元、地下10元/平/月
  • 楼盘特色
    风貌别墅  成熟商圈  品牌房企  
    交房时间
    2027年4月前
    物业公司
    华润物业
  • 楼盘类型
    别墅
    装修情况
    毛坯交付
    建筑面积
    90914平米
  • 产权年限
    70年
    容  积  率
    1.33
    占地面积
    28721平米
  • 楼盘报价
    250000元/平方米
    绿  化  率
    35%
    开  发  商
    上海士林置业有限公司
  • 户型面积
    210-500平米
    总  栋  数
    103栋
    预售证号
    预售证:黄浦房管(2025)预字0000005号
  • 付款方式
    按揭、一次性
    总  户  数
    103户
    楼盘地址
    黄浦河南南路蓬莱路

周边配套

  • 学校
    周边的公立学校有复兴东路三小、上海实验小学、蓬莱路二小等,初中有光明初级中学及市十、市八,康德及永昌两所九年一贯制的民办学校等。
  • 购物
    500米的范围内香港名都城、豫园商圈、复兴艺术中心,人民广场、新天地、外滩、南京路步行街都在2km范围商业环绕。
  • 医院
    周边有上海九院、瑞金医院、仁济医院西院、黄浦区中西医结合医院、曙光医院西院、复旦大学附属妇产科医院等综合性、专科医疗资源。
  • 生活
  • 娱乐
  • 餐饮
户型图
地图
你可能感兴趣的楼盘

您要预约看房的楼盘是
士林润园

  • 您要预约降价通知的楼盘是
    士林润园

  • 您要预约看房的楼盘是
    士林润园

  • 您要降价通知的楼盘是
    士林润园