热门搜索: 万科 杭州 保利 昆山 虹桥汇
您当前位置: 首页 > 楼盘 > 上海 > 松江区
紫都上海晶园

报价:

78000

元/㎡

【特价房源】限时,仅1套!

已有108人报名

面积:305-479平方米

装修情况:毛坯交付

交房时间:现房

楼盘地址:松江佘北公路389弄

开发商:上海紫都佘山房产有限公司(紫江企业集团股份有限公司)

预售证:松江房管(2010)预字0233号

电话图标 1358-5654-666

问底价?不如一个电话轻松搞定!

图标 降价通知

图标预约看房

楼盘信息

项目介绍

一、区域:紫都上海晶园位于佘山国家旅游度假区内,雄踞佘山北麓,距佘山500米,月湖旁、佘山天主大教堂下,自然生态环境和视觉景观好,空气质量好,亲水住宅,离”尘“不离城。外邻度假区配套—佘山高尔夫国际俱乐部、世茂国际会议 、国际游艇俱乐部。
 
 
二、交通:项目距离9号线洞泾站(约4815米),至人民广场约35km;至徐家汇约29km;至虹桥机场约25km;至松江新城约10km;G15(莘砖公路)、G50(赵巷)、G60(松江新城)、G1501(天马),沪青平公路、嘉松公路、沈砖公路、沪松公路连接各高速与市区,交通便利。
 
 
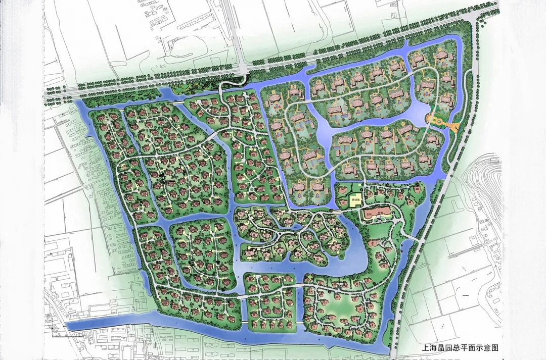
三、项目:紫都上海晶园总占地约1300亩,共规划260余幢,英式、北美、现代建筑风格各异的别墅,项目由八大主题景观:山、水、路、桥、树、草、花、园,绿化造景组成,运用天然水系。 项目内设多功能会所,阳光宴会大厅、雪茄吧、红酒吧、多功能厅、影视厅、室内游泳池、健身 ;24小时CCTV安保监控,各类自动报警防盗系统 ,保障住户的安全及隐私。
 
 
四、出售:独栋大花园别墅,地上2层+地下1层,花园1000-3000平米,户型面积:305-479平方米,售价7.6万/平米起(一栋一价),总价2320万-4606万
 
A地上484平,地下302平,占地:2001平
B地上347平,地下239平,占地:1407平
C地上327平,地下224平,占地:1060平
D地上315平,地下190平,占地:1742平


数据参数

  • 所属区域
    松江区
    售楼电话
    1358-5654-666
    停  车  位
    1:2
  • 楼盘名称
    紫都上海晶园
    开盘时间
    物  业  费
    地上8.5元/平/月
  • 楼盘特色
    交房时间
    现房
    物业公司
    上海紫泰物业管理有限公司
  • 楼盘类型
    别墅
    装修情况
    毛坯交付
    建筑面积
  • 产权年限
    容  积  率
    0.2
    占地面积
    1300亩
  • 楼盘报价
    78000元/平方米
    绿  化  率
    57.50%
    开  发  商
    上海紫都佘山房产有限公司(紫江企业集团股份有限公司)
  • 户型面积
    305-479平方米
    总  栋  数
    一期63幢、二期62幢、三期G区68席
    预售证号
    预售证:松江房管(2010)预字0233号
  • 付款方式
    总  户  数
    楼盘地址
    松江佘北公路389弄

周边配套

  • 学校
    包玉刚实验学校(小、初、高中)、宋庆龄学校(幼儿园、小学、初中)
  • 购物
    万达广场、开元地中海商业广场、奥特莱斯品牌广场、米格天地
  • 医院
    佘山镇社区卫生服务中心,松江第一人民医院。
  • 生活
    佘山高尔夫俱乐部、月湖雕塑公园、辰山国家植物园
  • 娱乐
    佘山艾美酒店、佘山索菲特大酒店,在建世茂深坑酒店、华侨城旅游度假主题酒店、佘山艾美二期、城建精品酒店;
  • 餐饮
户型图
相册
地图
你可能感兴趣的楼盘

您要预约看房的楼盘是
紫都上海晶园

  • 您要预约降价通知的楼盘是
    紫都上海晶园

  • 您要预约看房的楼盘是
    紫都上海晶园

  • 您要降价通知的楼盘是
    紫都上海晶园