热门搜索: 万科 杭州 保利 昆山 虹桥汇
您当前位置: 首页 > 楼盘 > 上海 > 松江区
国贸凤凰原

报价:

44000

元/㎡

【特价房源】限时,仅1套!

已有188人报名

面积:87-127平米

装修情况:装修交付

交房时间:现房

楼盘地址:上海松江云逸路和周村星路交叉口

开发商:国贸集团

预售证:松江房管(2020)预字0000156号

电话图标 1358-5654-666

问底价?不如一个电话轻松搞定!

图标 降价通知

图标预约看房

楼盘信息

项目介绍

一、区域:国贸凤凰原位于永丰街道,隶属于松江新城规划的核心板块内,处于G60科创走廊,松南枢纽辐射区内,在项目2公里范围内,已拥有成熟的交通、教育、医疗、商业等各项配套,未来仍将建设有大型公园,体育,商场等规划,满足业主的多重需求。
 
 
二、交通:距离9号线醉白池站4.5公里,公交枢纽总站400米,业主班车:交房后两年内免费运行,社区直达9号线地铁。高铁:紧邻松南高铁站,接入沪苏湖线(在建)、沪昆线(在建),沪杭(立项待建)三条高铁,通达江浙皖,融入长三角“1小时交通圈”,畅享双城生活。
 
 
三、项目:国贸凤凰原是由品牌开发商国贸地产倾情打造的高品质精品社区。项目占地3.2万方,总建面5.8万方,车位比:1.1.02,由11幢11层-13层的小高层组成,规划户数687,打造全龄化健康美宅。社区绿化率35%,采用多组团景观设计,做到处处有景、错落有致。
 
 
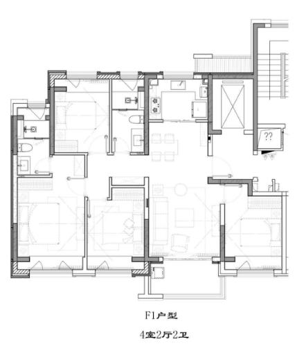
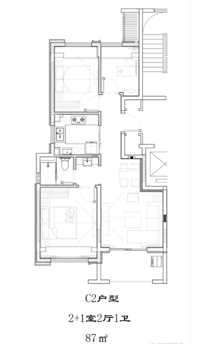
四、销售:在售住宅楼层:4、5单元11层,8单元12层,其余总高13层,电梯直通地下车库,层高:顶楼2.9米,其余楼层3米,梯户比:127 ㎡两梯两户,88/99 ㎡一梯两户,装修交付,带空调地暖,户型面积:87 ㎡三房两厅一卫,99 ㎡三房两厅两卫,127 ㎡四房两厅两卫,单价:4.4万,总价:88 ㎡,364-384万,99 ㎡416-434万,127 ㎡560-600万


数据参数

  • 所属区域
    松江区
    售楼电话
    1358-5654-666
    停  车  位
  • 楼盘名称
    国贸凤凰原
    开盘时间
    物  业  费
    4.18元
  • 楼盘特色
    交房时间
    现房
    物业公司
    万贸物业(万科+国贸合作物业)
  • 楼盘类型
    住宅
    装修情况
    装修交付
    建筑面积
    5.8万方
  • 产权年限
    容  积  率
    1.8
    占地面积
    3.2万方
  • 楼盘报价
    44000元/平方米
    绿  化  率
    35%
    开  发  商
    国贸集团
  • 户型面积
    87-127平米
    总  栋  数
    共11幢、11-13层的小高层
    预售证号
    预售证:松江房管(2020)预字0000156号
  • 付款方式
    总  户  数
    756户
    楼盘地址
    上海松江云逸路和周村星路交叉口

周边配套

  • 学校
    可享大学城8所高校、对外经贸大学附属学校(建设中)、项目多所幼儿园(华亭、玉秀、玉树、盛乐等)、松江实验小学、花园小学、第三实验小学等优质教育资源环伺,满足全龄段教育需求。〔学区待定〕
  • 购物
    交之影大厦(在建中)、新理想广场(2.6公里)开元地中海(6公里)、中山街等多个商业广场环伺,以餐饮、娱乐、购物、商务等缤纷业态,构建都市繁华生活圈。
  • 医院
    项目周边有中心医院(二甲)、方塔中医院、妇幼保健医院、社区服务中心、第一人民医院(三甲)等丰沛医疗资源。
  • 生活
  • 娱乐
  • 餐饮
户型图
地图
你可能感兴趣的楼盘

您要预约看房的楼盘是
国贸凤凰原

  • 您要预约降价通知的楼盘是
    国贸凤凰原

  • 您要预约看房的楼盘是
    国贸凤凰原

  • 您要降价通知的楼盘是
    国贸凤凰原