热门搜索: 万科 杭州 保利 昆山 虹桥汇
您当前位置: 首页 > 楼盘 > 上海 > 青浦区
宝龙虹桥SOHO

报价:

23000

元/㎡

地铁上盖 宜商宜居 商办综合体

【特价房源】限时,仅2套!

已有314人报名

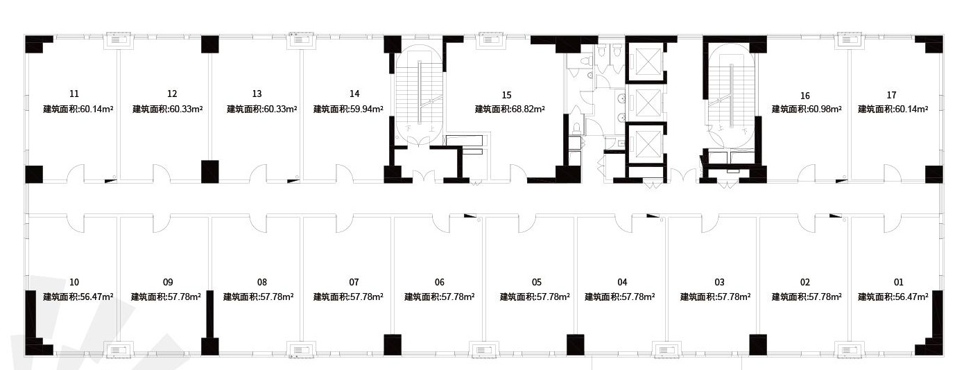
面积:57-68平米

装修情况:毛坯交付

交房时间:现房

楼盘地址:青浦区盈港东路与汇金路交叉口

开发商:宝龙集团

电话图标 1358-5654-666

问底价?不如一个电话轻松搞定!

图标 降价通知

图标预约看房

楼盘信息

项目介绍

 一、区域:宝龙虹桥SOHO位于上海市青浦赵巷板块,坐享百年未有之大机遇“既智掌长三角一体化门户,亦享有三重政策利好加持,帷幄虹桥国际开放枢纽7000平方公里新版图,叠加了大虹桥、五大新城和长三角一体化几大引擎的青浦,是“十三五”时期建设发展的重中之重。青浦新城承接支撑虹桥国际开放枢纽,长三角生态绿色一体化发展示范区重大功能,发展数字经济,总部经济,形成创新研发,会展商贸文旅旅游休闲等具有竞争力的绿色产业,目前聚集以华为青浦研发基地为核心,乐高、哈工大人工智能、漕河泾等联合江浙两省打造万亿级信息产业集群。
 
 
二、交通:项目双枢纽上盖(地铁+公交总站),轨交17号线汇金路地铁站正上盖的综合体,从项目7站到达虹桥枢纽,6站到达国家会展,与2号10号13号无缝换乘.沪苏嘉城际线、嘉松青金市际线等在地铁17号线青浦新城站同站换乘直达江苏浙江两省。17号线西延伸直连苏州地铁四号线(已规划)未来连接长三角。立体交通:飞机京津冀、粤港澳,高铁长三角经济圈,国际开放枢纽,通达世界。
 
 
三、项目:虹桥宝龙中心由中国房企百强宝龙集团在沪打造的35万方的大型城市综合体,由2栋写字楼、1栋酒店、2栋公寓、1栋购物和风情街组成的多重业态,配套办公、购物、商业街、酒店、公寓等,工作生活娱乐一体化。形成上海西部综合体
 
 
四、出售:准现房公寓出售:即买即收租,层高4.5米(LOFT双钥匙 ),可分上下层,深8.45米,宽5.5米,(水5.5 元 ;电费1.1元)建筑面积57-68平米,均价2.3-2.8万/平米,总价130万起
 
出售餐饮商铺,层高5.8米,面宽4.2米,进深10米左右,建筑面积33-151平米,总价320万起
 


数据参数

  • 所属区域
    青浦区
    售楼电话
    1358-5654-666
    停  车  位
    1247个
  • 楼盘名称
    宝龙虹桥SOHO
    开盘时间
    物  业  费
    4元/㎡月;水5.5 元 ;电费1.1元
  • 楼盘特色
    地铁上盖  宜商宜居  商办综合体  
    交房时间
    现房
    物业公司
    宝龙物业
  • 楼盘类型
    酒店式公寓
    装修情况
    毛坯交付
    建筑面积
    35万方
  • 产权年限
    容  积  率
    3.83
    占地面积
    9万方
  • 楼盘报价
    23000元/平方米
    绿  化  率
    20%
    开  发  商
    宝龙集团
  • 户型面积
    57-68平米
    总  栋  数
    0
    预售证号
  • 付款方式
    总  户  数
    0
    楼盘地址
    青浦区盈港东路与汇金路交叉口

周边配套

  • 学校
  • 购物
  • 医院
  • 生活
  • 娱乐
  • 餐饮
户型图
地图
你可能感兴趣的楼盘

您要预约看房的楼盘是
宝龙虹桥SOHO

  • 您要预约降价通知的楼盘是
    宝龙虹桥SOHO

  • 您要预约看房的楼盘是
    宝龙虹桥SOHO

  • 您要降价通知的楼盘是
    宝龙虹桥SOHO