热门搜索: 万科 杭州 保利 昆山 虹桥汇
您当前位置: 首页 > 楼盘 > 上海 > 静安区
中铁中环时代广场

报价:

28000

元/㎡

品牌房企 成熟商圈 地铁沿线

【特价房源】限时,仅1套!

已有188人报名

面积:416-1445平米

装修情况:精装交付

交房时间:

楼盘地址:静安区江场西路299弄

开发商:上海中铁市北投资发展有限公司

预售证:闸北房管(1757)预字7377号

电话图标 1358-5654-666

问底价?不如一个电话轻松搞定!

图标 降价通知

图标预约看房

楼盘信息

项目介绍

一、区域:
中铁中环时代广场位于静安区大宁CBD核心区,市北高新园区核心位置,项目扼守中环“金腰带”,属于”上海2035“规划中的开发区域 。市北高新园区,是国务院批复同意建立的全国第三家国家自主创新示范区,是静安推进“一轴三带”发展战略,实现“全球服务商计划”的核心组成部分,周边产业集群:市北高新技术园区、越界创意园区、新业坊、环上大影视产业园、大宁多媒体谷等,周边2公里内有大宁音乐广场、协信星光广场、大宁国际广场、久光百货等商业综合体。一应俱全让大宁成为继南京西路商圈后的静安商圈,项目生活配套资源丰富,非常适合追求高品质生活的人士置业是集宜商、宜住、宜租三位一体,兼具投资和自用的功能品质,同时满足了温馨家居、创意办公、投资的多元化需求。
 
 
二、交通:
项目
地铁1号线汶水路站1200米,1号线7站直达人民广场,园区配有151、528路等多条公路线路。自驾起中环高架、南北高架,开车上中环到虹桥火车站虹桥机场约,出行方便。
 
 
三、项目:
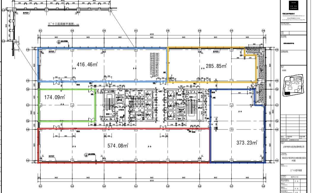
中铁中环时代广场是由中国中铁的全资子公司中铁置业与市北高新强强联手,精心打造的综合性商务广场。占地面积51848.6㎡,总建筑面积214227㎡,其中地上建筑面积为145149㎡,办公楼为116677㎡,商业为14585㎡,酒店为14522 ㎡,地下有两层。项目由7幢塔楼、开放的商业街区、主题广场和主题绿化公园组成,是一个集SOHO、百变LOFT、办公、酒店、休闲娱乐于一体的大型城市综合体。采用人车分离布局,满足多方面生活需求。
 
 
四、出售
办公楼
总高16层,大堂8米挑高,正对电梯厅,门头很宽气派,户型方正没有中间柱,双面采光,落地窗玻璃,视野开阔,建筑面积416-1445平米,售价2.8万/平米
 
酒店式公寓
现房拎包入住,层高3.5米-5.5米,户型面积约50-130平米,总价278万-458万


五、出租:
办公楼建筑面积416-2890平米,租金3.5元/平/天
 


数据参数

  • 所属区域
    静安区
    售楼电话
    1358-5654-666
    停  车  位
    共有1380个车位,地上有38个临时停车位,出租800元/月,售20万元/个
  • 楼盘名称
    中铁中环时代广场
    开盘时间
    物  业  费
    4.3元/平/月(公寓) 、7.3元/平/月 (复式) 、13.5元/平/月 (平层)
  • 楼盘特色
    品牌房企  成熟商圈  地铁沿线  
    交房时间
    物业公司
    第一太平戴维斯
  • 楼盘类型
    办公楼
    装修情况
    精装交付
    建筑面积
    约214227平米
  • 产权年限
    容  积  率
    2.8
    占地面积
    约51849平米
  • 楼盘报价
    28000元/平方米
    绿  化  率
    25%
    开  发  商
    上海中铁市北投资发展有限公司
  • 户型面积
    416-1445平米
    总  栋  数
    预售证号
    预售证:闸北房管(1757)预字7377号
  • 付款方式
    总  户  数
    1300户
    楼盘地址
    静安区江场西路299弄

周边配套

  • 学校
  • 购物
    周边有大润发购物300米、大宁国际商业广场大融城、日月光,大宁国际商业广场、大宁久光1500米、大宁中心广场、宝华国际广场、协信星光广场等一批商业综合体
  • 医院
    上海第十人民医院、上海中医院、同济大学附属口腔医院
  • 生活
  • 娱乐
  • 餐饮
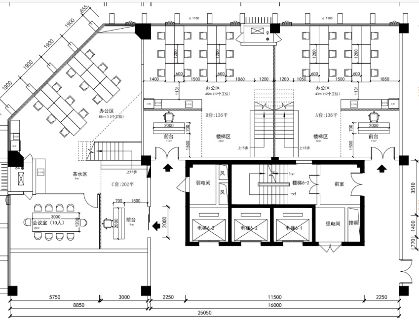
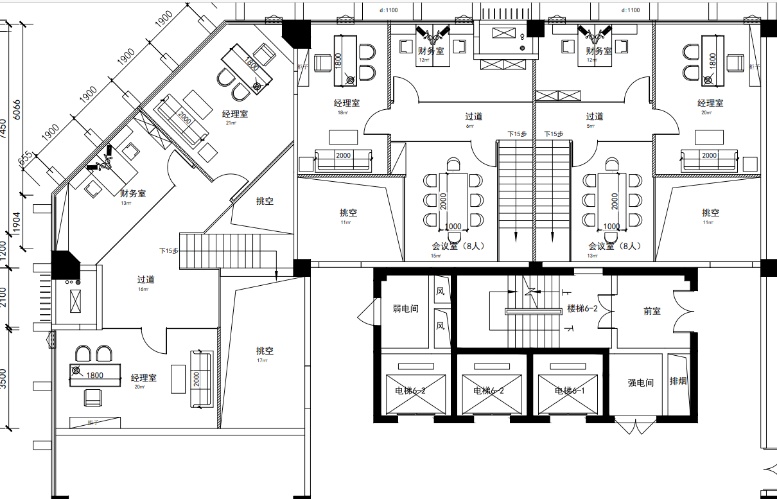
户型图
地图
你可能感兴趣的楼盘

您要预约看房的楼盘是
中铁中环时代广场

  • 您要预约降价通知的楼盘是
    中铁中环时代广场

  • 您要预约看房的楼盘是
    中铁中环时代广场

  • 您要降价通知的楼盘是
    中铁中环时代广场